AZUETA

PERIODO

Enero 2009   -   Mayo 2011

 

TRABAJO

Proyecto, trámites y construcción de nueve viviendas tipo condómino.

 

UBICACIÓN:

Azueta 199, colonia Centro, Xalapa, Veracruz.

 

ALCANCES:

1.-En un terreno plano ubicado en pleno centro de la ciudad, con dimensiones de 17.50m de frente por 55.00m de fondo, elaborar un proyecto de viviendas tipo condómino de diversos tamaños para venta, en el cual se planteó espacios construidos y espacios abiertos, estacionamiento por vivienda, servicios subterráneos -agua, luz, teléfono, cable, etc.-, y cisternas enterradas. 2.-Todo ello a partir de la muestra de las viviendas ejecutadas en Lagos Cházaro, siendo un proyecto distinto por las características propias -construcción en el centro de la ciudad, pero diseñadas para evitar los inconvenientes por ello... ruido y polvo en exceso, exposición a los transeúntes, falta de privacidad, poca disponibilidad de estacionamientos, etc.-, pero semejante en cuanto al alcance previsto -homogeneidad en las fachadas, atemporalidad de las construcciones, exposición de los materiales constructivos-. 3.-En un principio se determinó construir cuatro viviendas pequeñasdos viviendas medianas y dos viviendas grandes, comenzando con las pequeñas al frente y terminando con las grandes al fondo -por plusvalia-; posteriormente se replanteó el proyecto, pasando las viviendas pequeñas al centro del terreno -esto por la existencia de una hilera de árboles que se conservaron-, y se construyó una vivienda más en fachada, cuyas características la hacían ser un loft -espacio polifuncional tipo vivienda/estudio de trabajo- la cual sirvió de frente/fachada de la unidad. 4.-Como parte del diseño se planteó respetar la vegetación existente, y los espacios abiertos con el mínimo de alteración -rodadas de piedra para los vehículos en vez de pavimentación total; áreas engravilladas en vez de pavimentación total; áreas ajardinadas como espacios de transición entre las viviendas y lo vehicular; respetar las condiciones externas de las viviendas de los vecinos -alturas, niveles, cotas, directrices, materiales, colores, etc.-, a modo de homogeneizar la fachada principal. 5.-Siendo que se rescató la fachada con la homogeneidad, se contempló diferenciar lo nuevo de lo existente de forma sutil -si el vecino usó un retoque de ladrillos, acá se usó mediatabla; si el vecino usó aplanado rugoso, acá se usó aplanado fino; etc.-.

Antecedentes

En un inicio la fachada existente no presentaba mayor diseño o más bien, ésta no jugaba un rol respecto a sus vecindades, cuestión que se buscó modificar con la propuesta misma, sin embargo también se buscó respetar las fachadas existentes a modo que ubiera un diálogo más que una confrontación, cuestión que se cree se logró y con ello se dignificó parte de una cuadra de manzana siendo representativo el tratamiento. En el terreno existían diversos árboles plantados décadas atrás, los cuales no merecían ser cortados, se optó por respetar los más para integrarlos en los espacios abiertos a construir. Si bien las viviendas se diseñaron a modo que estuvieran orientadas y sufrir lo menos de las inclemencias meteorológicas, lo cierto es que en parte ello dependía de la conservación de los colchones de áreas verdes. De igual forma, el conservar el terreno en buena parte con sus condiciones previas -abierto y sin pavimentar en su totalidad-, permitió que la absorción del agua pluvial fuese relevante, tanto para la conservación de la temperatura, como parte de las condiciones de vida de la vegetación.

Proyecto

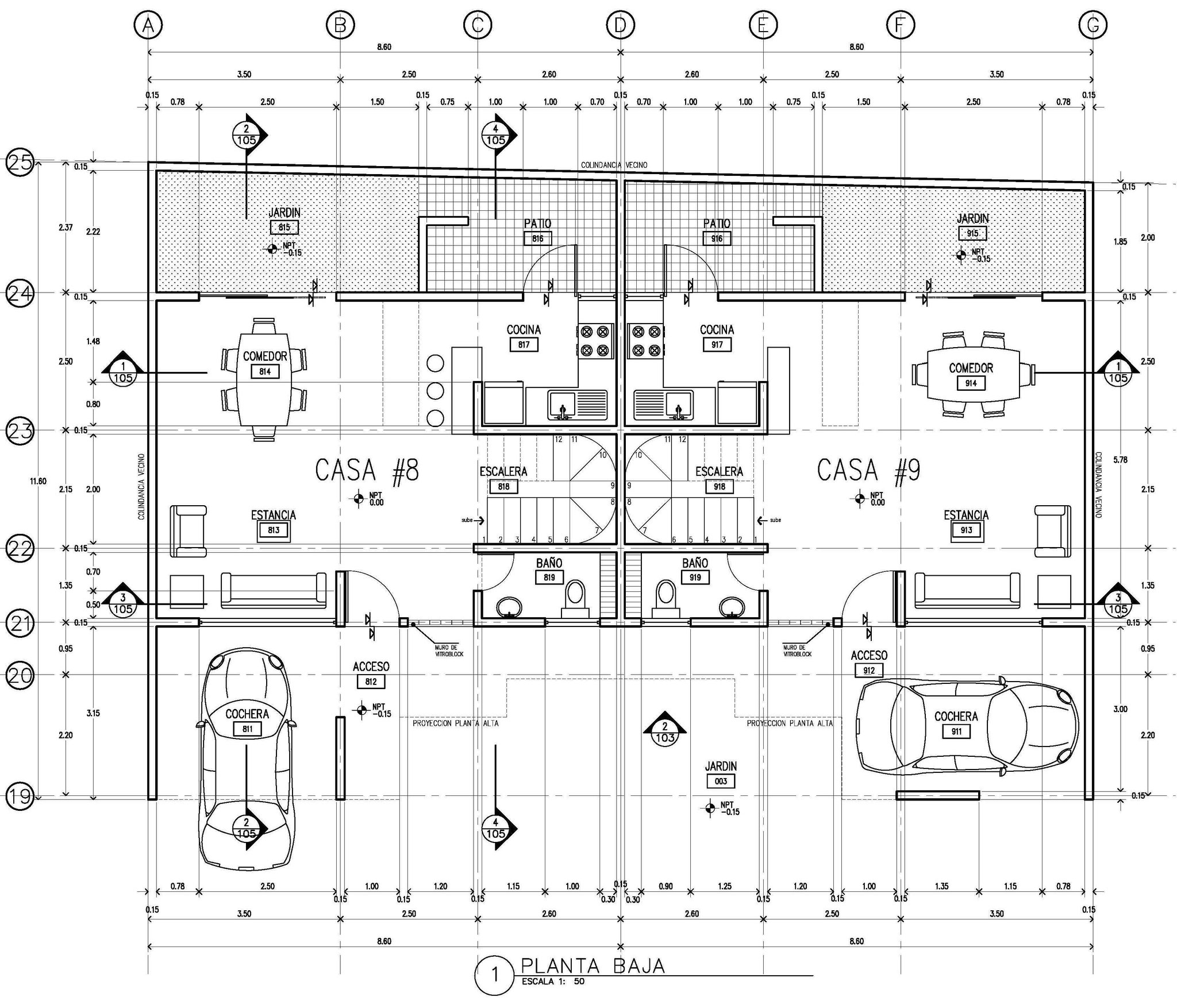
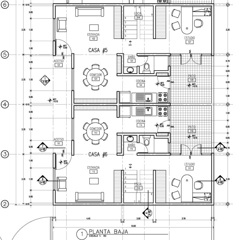
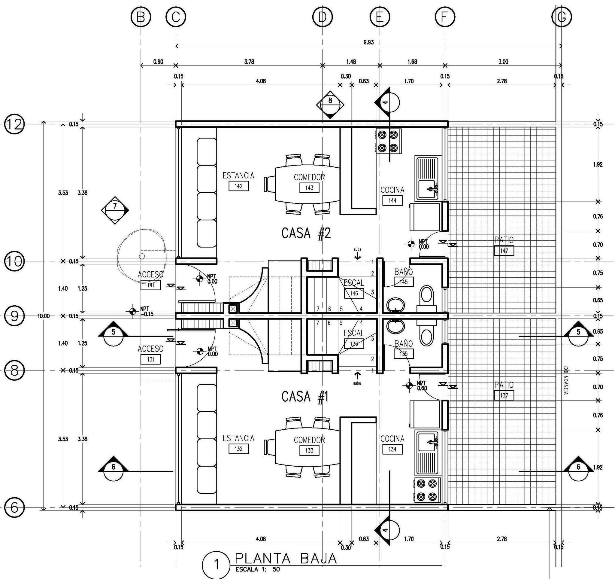
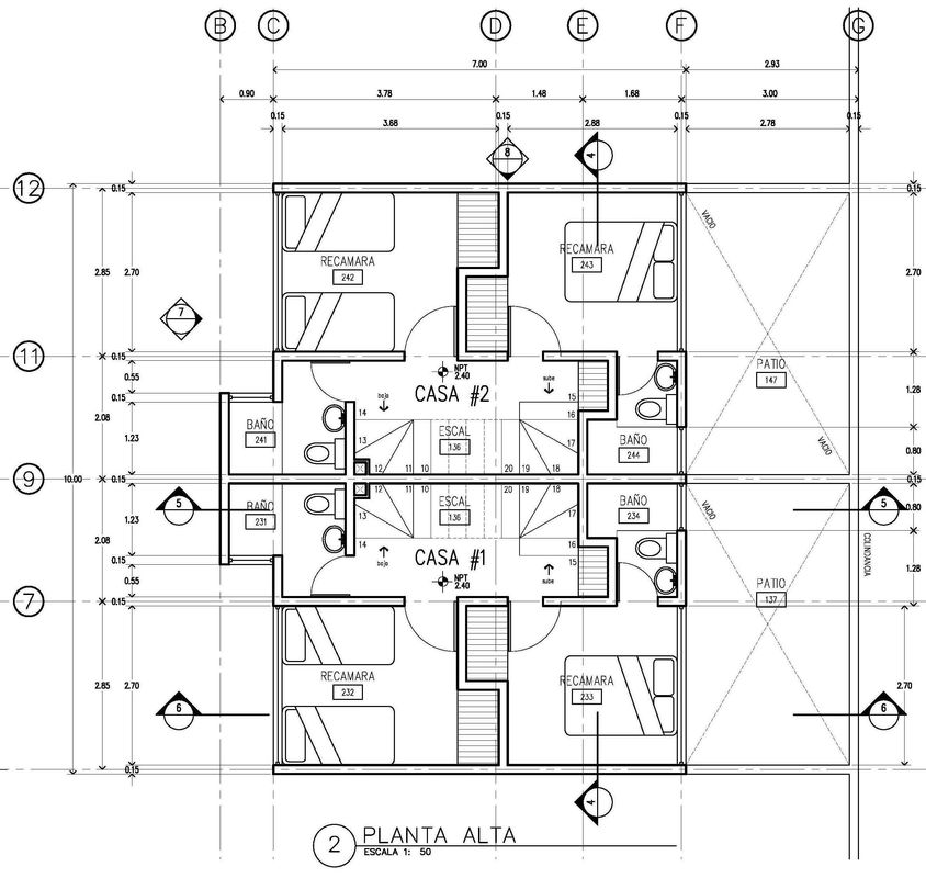
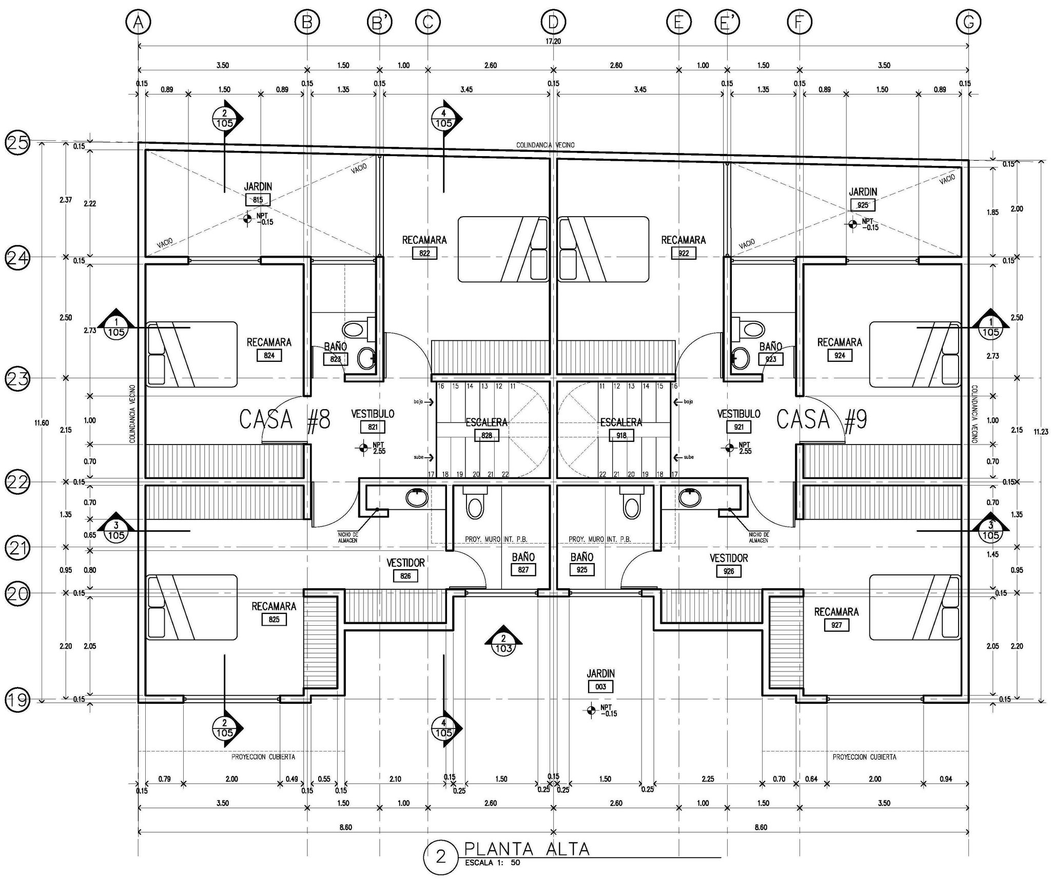
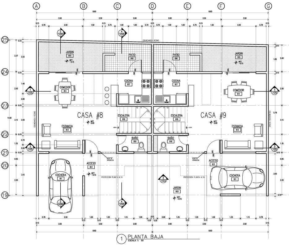
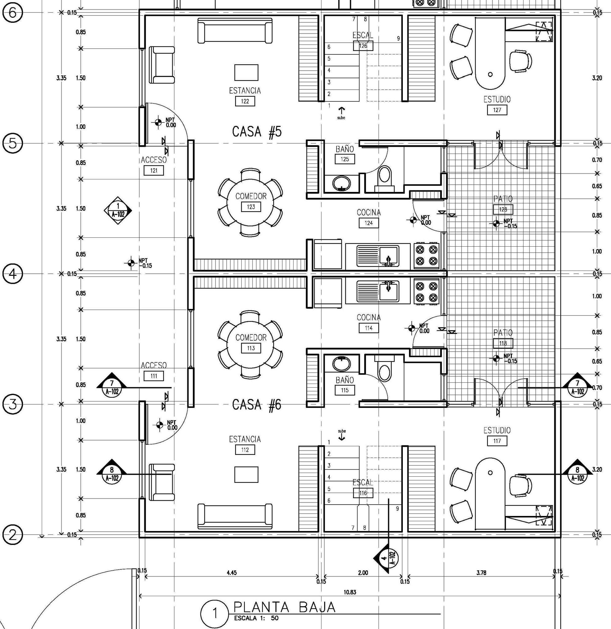
Respecto al proyecto, lo planeado fueron 9 viviendas (2 grandes, 4 chicas, 2 medianas, y 1 Loft), comenzando por el Loft y terminando al fondo con las grandes; esto en dos bloques, el primer bloque -contiene todas las viviendas menos las grandes- orientado en el costado derecho -orientación norte-; y en el fondo el segundo bloque con las viviendas grandes; todo ello a partir de espacios abiertos -acceso, cajones de estacionamiento, rotonda vehícular, banquetas en frentes, jardineras, etc.-, que permiten a la unidad respirar y no verse "apretada".

 

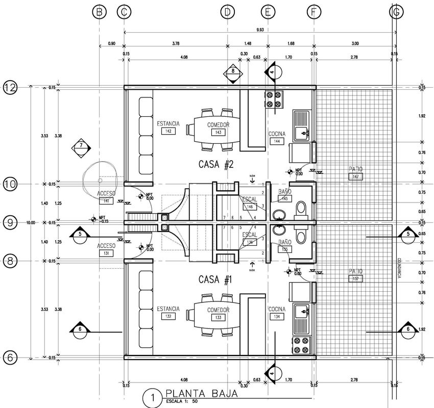
Los proyectos individuales de viviendas fueron cuatro tipos: viviendas pequeñas -cuyo diseño se analizó y ejecutó para la obra de Lagos Cházaro-, viviendas medianas -un prototipo de vivienda que permitía gozar de mayor espacio que las viviendas pequeñas-, viviendas grandes -un diseño abierto en planta baja, muy similar a las viviendas pequeñas, pero con la libertad de más espacio en general, y cuya ubicación la favorece al encontrarse al fondo de la unidad-, y una vivienda tipo loft que permitió ser la transición entre la fachada principal y el bloque de vivienda, tanto en lo funcional -puede ser vivienda y/o estudio de trabajo- como en lo formal -se jugó con los volúmenes y acabados exteriores-.

 

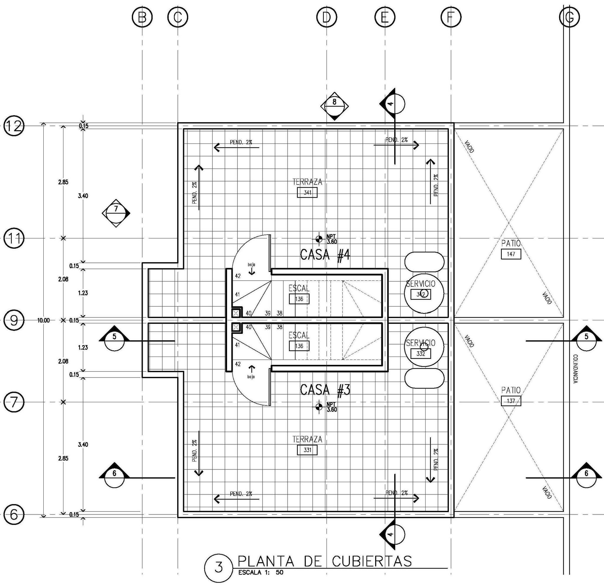
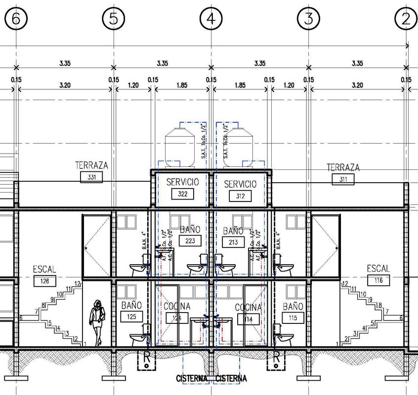
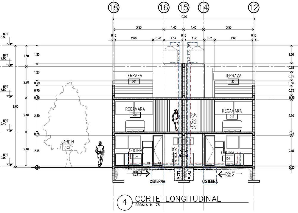
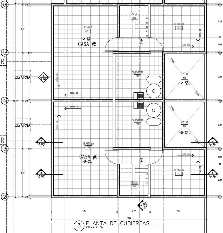
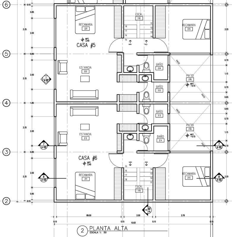
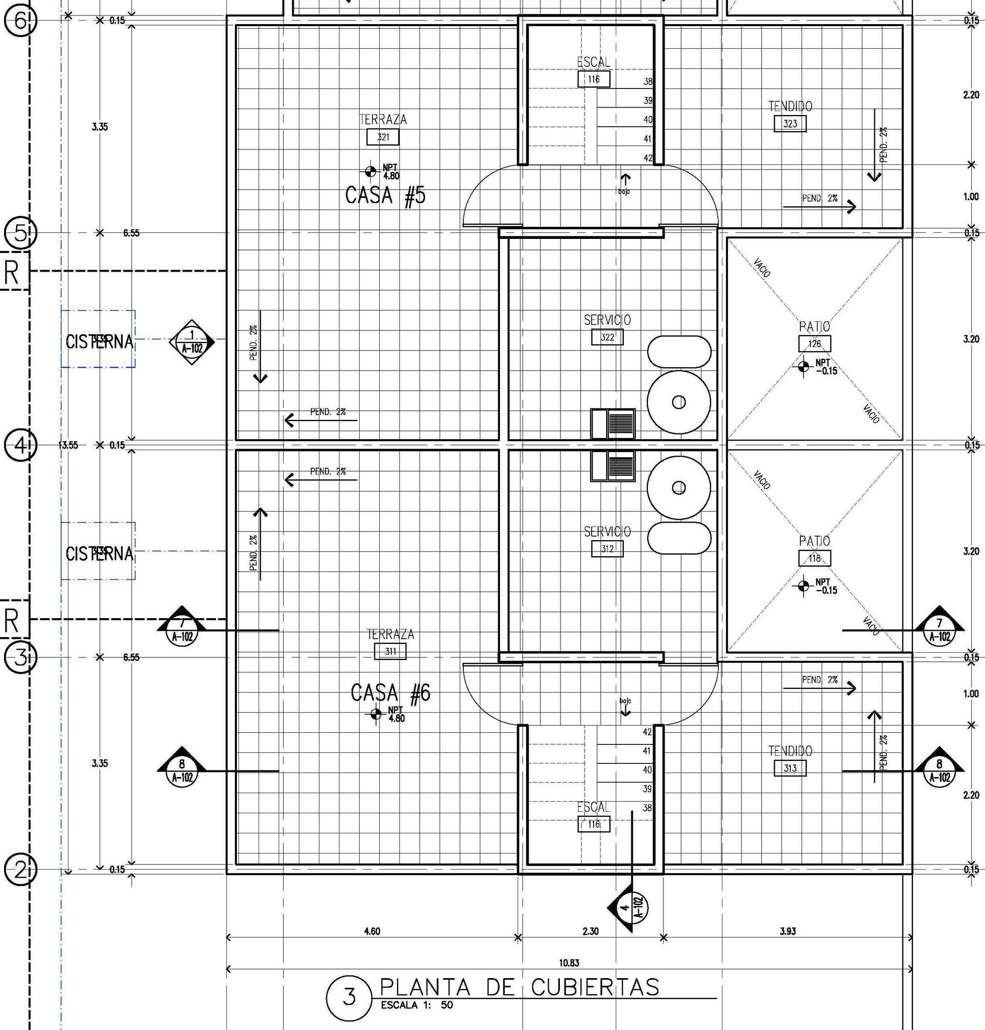
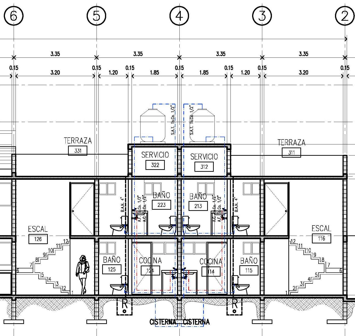
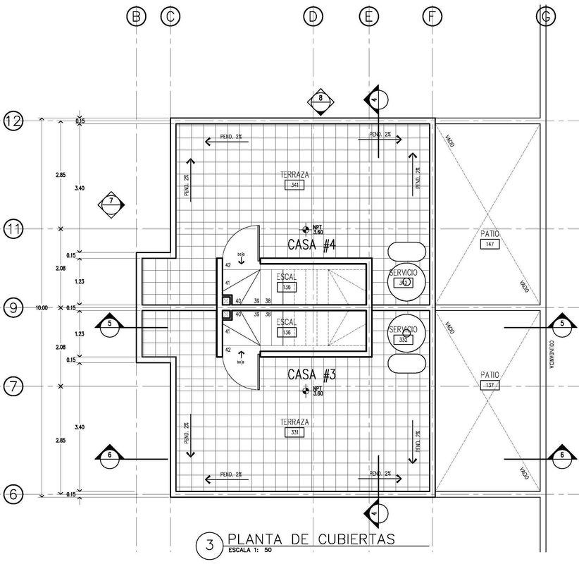
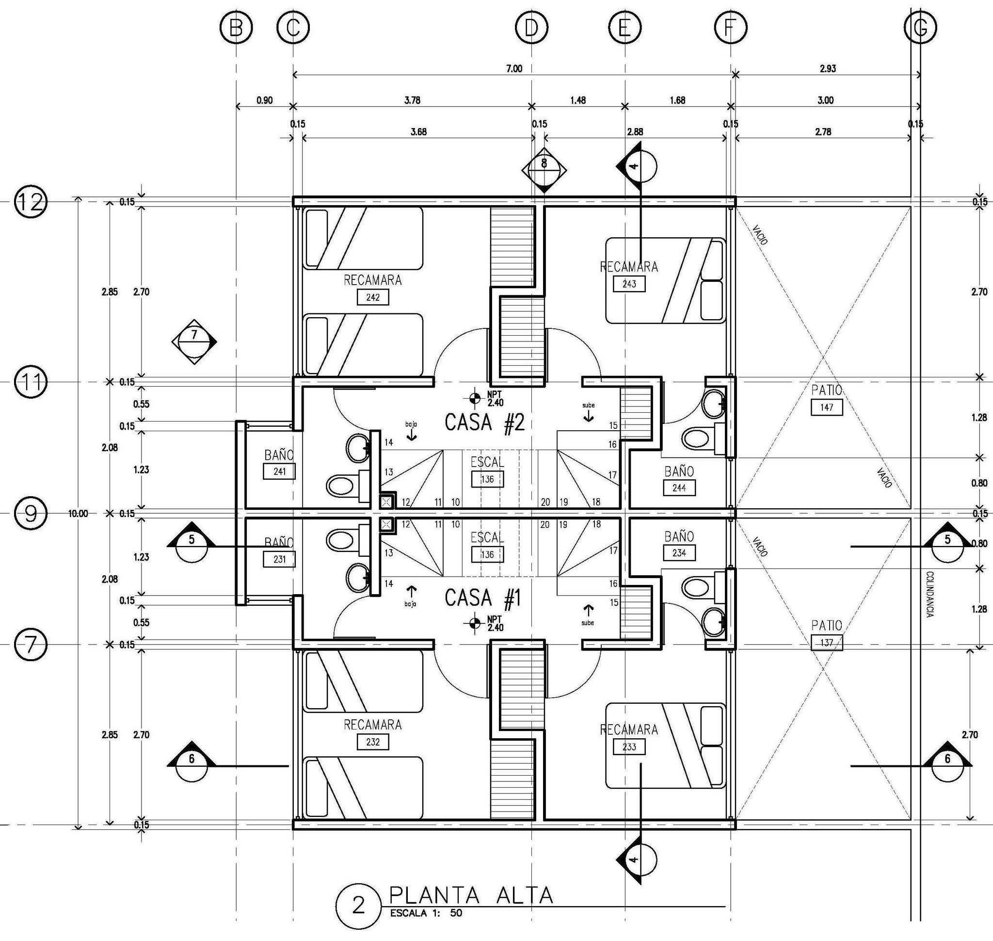
En el caso de las viviendas pequeñas en planta baja contiene espacios de servicio -acceso, escalera, chimenea, medio baño-, y espacios servidores -estancia, comedor, cocina-; en planta alta contiene dos recámaras con dos baños completos -uno al interior de una recámara y el otro compartido-; y en el área de azotea, además de contener los espacios de servicio -lavandería, tendido, etc.-, se dejó estructurado como terraza compartida con banca incluida, a modo de disfrutar de éste. Todo ello con los detalles propios de éste diseño -escaleras flotantes, luminarias sobrepiso en escaleras, tiro de chimenea oculto, banca de material en azotea, cambio a cubierta con pendiente en una recámara, etc.-.

 

En el caso de las viviendas medianas, el prototipo es diferente ya que se planteó tener más espacios -un estudio en planta baja, una tercer recámara en planta alta, etc.-, pero con el esquema -tipo y tamaño de espacios, ubicaciones, funciones, etc.- como en las viviendas pequeñas. Por ello encontramos una estancia y un comedor al frente con un acceso trampeado; una cocina, un medio baño y un patio de servicio como un único módulo que comparten instalaciones; unas escaleras flotantes centradas respecto a la vivienda que sigue el pasillo hacia un área alcobable; en la planta alta encontramos tres recámaras, una con baño completo al interior, y las otras dos con baño compartido; y de igual forma que en la vivienda pequeña, la azotea es un área de servicio -lavandería, tendido, etc.-, y de disfrute -terraza con banca de material-.

 

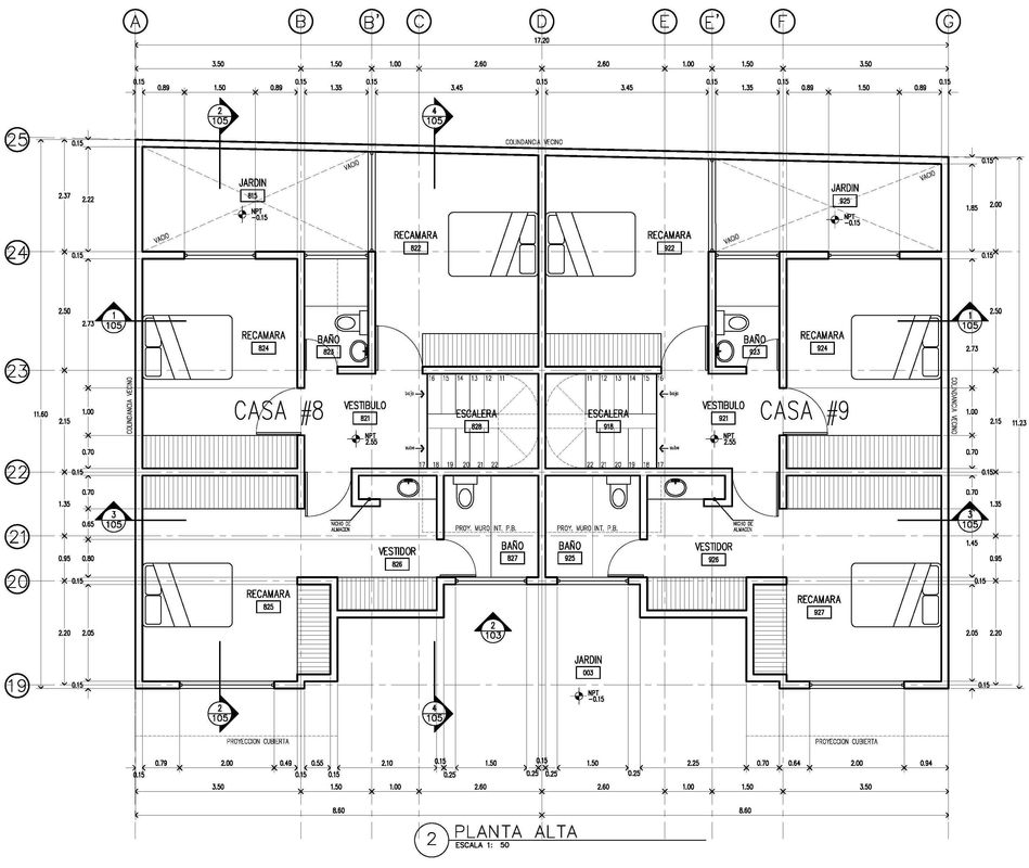
Si bien las viviendas grandes tienen mayor espacio, lo cierto es que aparentan más debido a que en planta baja se determinó dejar un espacio abierto -estancia, comedor, etc.- con un espacio distribuido -medio baño, escaleras, cocina, etc.-, lo que combinado con la cochera y el jardín al frente y, con el jardín al interior, da la sensación que el espacio es más grande de lo que en verdad es. En la planta alta, también contiene tres recámaras, una con baño completo al interior, y las otras dos con baño compartido. En la azotea, también encontramos un área de servicio -lavandería, tendido, bodega, etc.-, y un área de disfrute -una terraza con banca de material-. Todo ello con la singularidad de que cada espacio cuenta con iluminación y ventilación natural.

 

En el caso del Loft, éste es punto y aparte, su diseño es singular en cuanto a la distribución de los espacios -si bien la fachada es pequeña, contiene tres niveles de construcción con todos los elementos necesarios-; la manera es que se repartieron éstos, a veces de modo simplificado -el acceso a través de una escalera muy sencilla pero de forma elegante-, a veces de modo teatral -cuando subes por esa escalera, para encontrarte con un espacio a doble altura con un ventanal espectacular-; lo polifuncional de los espacios -no sabemos si es una estancia/comedor o una recepción/estudio, o bien un dormitorio/despacho principal-; y lo curioso la ventilación, la iluminación y los servicios -sanitarios-, están en todas partes.

Obra

La construcción duró aproximadamente 30 meses, desde el inicio de los trámites casi en paralelo con las primeras excavaciones, hasta la terminación de las nueve viviendas y del espacio abierto -acceso, cajones de estacionamiento, rotonda vehícular, banquetas en frentes, jardineras, etc.-. Si bien se pudo haber logrado en menos tiempo, lo que se buscó es que fuese autofinanciable -desde el inicio de la obra existían personas interesadas en comprar; con el anticipo o bien la venta anticipada se tenía el recurso para continuar con la obra-, además ello permitió atender con mayor cuidado la ejecución de los detalles constructivos no forzados por la velocidad misma. También es cierto, que casi al final de la obra, se tuvo que acelerar el proceso de terminación por presión de los mismos clientes, dado que todas las viviendas se encontraban vendidas.

 

Realizar una construcción en el centro de la ciudad es distinto a hacerlo en otras partes, los acotamientos en el trabajo son mayores, la presión de autoridades y particulares es mayor, la disponibilidad de recursos es mermada en función de los horarios, en fin involucra un grado de mayor complejidad. Aquí se presentan todo tipo de autoridades a revisar la obra, si tienes el inconveniente -como nosotros lo tuvimos- de tener de vecino a un funcionario, te tendrán visto con la lupa, a veces sin fundamento. Los horarios determinan la disponibilidad de materiales -recepción de camiones de materialistas- y trabajos a realizar -sobretodo en fachada-. Y claro está, el inconveniente de ser visitados con mayor frecuencia por "los amigos de lo ajeno".

 

La experiencia fue buena, ya se tenía el rol preestablecido desde años atrás con otro tipo de obras -los trabajadores y proveedores eran los mismos-. Aquí el asunto fino fue empalmar la ejecución de la obra con los trámites correspondientes -permisos adicionales de ruptura de pavimento por instalación de agua potable, permiso para trabajar sobre vialidad para concretar la fachada principal, etc.-; empalmar las actividades de los trabajadores con la recepción y disponibilidad de los materiales, así como eventos climatológicos; y también, limpieza, limpieza, limpieza... dado que constantemente nos visitaban prospectos, clientes, financieros de los clientes, aseguradoras, autoridades, sindicatos, etc.

Final

Si bien el trabajo buscado se logró, la unidad se vendió, la calidad se observa, existirá sus detractores y esto es algo con lo que hay que convivir. Aquí sólo presentamos las fotos finales de la obra, quizá más durante el proceso de terminación que las viviendas y exterior terminado -no se pretende dejar constancia como de revista-, como de una arquitectura que está viva -que puede cambiar en cualquier momento-.

 

No conozco persona que al interiorizar a la unidad no le guste el lugar, sea que sólo lo observe por el área abierta o entre al interior de alguna vivienda. La obra está allí, a pasado el tiempo y aún con los cambios -dado que ya está habitada y cada cabeza es un mundo-, en esencia sigue siendo la misma. Los vecinos de la calle la ubican bastante bien -desconozco si para bien o para mal-, se ha vuelto una referencia -desgraciadamente, por ello se tomó la decisión de no tener interfón en la fachada, a modo de que quien viene a éstas casas estará siendo esperando-.

 

Actualmente una parte de los árboles que se conservaron no están -bien me decía el vecino extinto, si los árboles dieran señal de internet, todos los cuidarían-, pero afortunadamente se han conservado los espacios verdes con árboles de ornamentación que permiten darle vida al espacio abierto. También los árboles que están son los cuidados por los habitantes que disfrutan de lo verde, y entre ellos se encuentra un árbol único que tiene la curiosidad de haber crecido sobre el tapial de piedra divisorio -ambos vecinos aceptaron conservarlo-, y se enmarcó como parte del diseño mismo.